进口混流泵
产品型号:
产品描述:
FEBOK INDUSTRIAL GROUP 费博克工业集团混流泵、德国混流泵、日本混流泵、美国混流泵、英国混流泵混流泵是介于离心泵和轴流泵之间的一种泵,又称斜流泵。适用于化工流程中强制循环、海水养殖、城市煤气工程、水处理系统。SPP泵能够···
产品特点:
立即咨询咨询热线:17750010617
混流泵

FEBOK INDUSTRIAL GROUP 费博克工业集团混流泵是介于离心泵和轴流泵之间的一种泵,又称斜流泵。适用于化工流程中强制循环、海水养殖、城市煤气工程、水处理系统。混流泵能够经济有效地输送大流量、低扬程的、纯净的或含有一定颗粒的,化学中性的或有腐蚀性的液体(强腐蚀性液体需说明)。化工泵性能高、能耗小,泵在整个机能范围内的能耗平均,可以在闭阀下启动,而电机不至过载,过流截面大,不易堵塞,结构紧固,使用寿命长。
二、混流泵与离心泵、轴流泵的不同
1)从流量、扬程来比较
混流泵的流量比离心泵大,比轴流泵小;
混流泵的扬程比轴流泵高,比离心泵小;
混流泵的流量从每小时数百吨到数千吨不等,扬程从5米到20米左右。
2)从液体流出方式来比较
当电动机带动叶轮旋转后,SPP既能产生离心力,也能产生轴向推力,是离心泵和轴流泵的综合。离心泵叶轮旋转只有离心力,轴流泵叶轮旋转只有轴向推力。
三、混流泵的结构

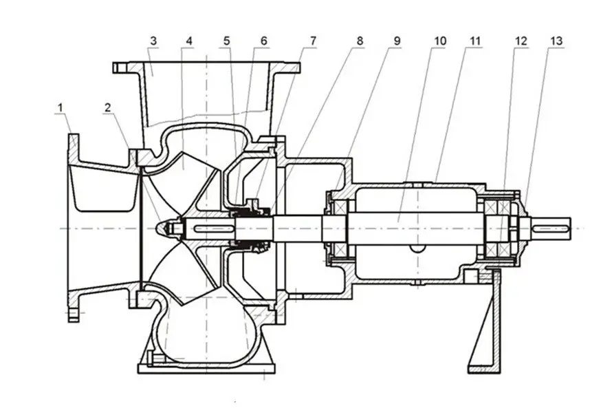
混流泵的结构,不管是蜗壳式混流泵还是导叶式混流泵,都是同样由叶轮、泵壳、泵轴、轴承和填料密封装置五个部件组成(图3-18)。蜗壳式混流泵的外形酷似离心泵;而导叶式混流泵的外形则很像轴流泵。混流泵叶轮形状粗短,它一部分像离心泵的叶轮;一部分又像轴流泵的叶轮,叶片是螺旋形扭曲叶片,叶轮叶片间的流道较宽,叶片出口边倾斜;它与离心泵和轴流泵叶轮内水流状况不同。水在混流泵叶轮中流动.是轴向进来.以倾斜的方向流出去,所以,混流泵又叫做斜流泵。泵壳的结构形式有两种:一是蜗壳形.例如HB型混流泵,基本上与离心泵相同,但其泵体宽大,卧式安装使用;另一是圆筒形.例如导叶式混流泵、农排泵,它们与立式轴流泵相似,泵体内也装有导叶,立式安装使用。
四、混流泵的特点
混流泵是一种“拉出”式结构泵,在检查和拆卸叶轮和轴封时,毋须将与泵体相连接的管路拆开。
装有精密加工的泵轴,装有稀油润滑的轴承,在填料函盖中装有防护轴套。
轴承箱的油位,可由恒位油杯来控制。
泵体的支脚,可承受来自管路的任何载荷,并直接传递给基础。这样,转子不会因为泵承受受载荷而产生弯曲,从而保证轴承的最佳使用寿命。
由于较大的过流面积,从而减少阻塞。
泵的旋转方向,从驱动端看,为顺时针方向。 动力驱动可采用电动机或内燃机。 泵装置上可以配备完整的放气装置,有利于吸入管路的排气。
五、混流泵性能参数












